Добро пожаловать на http://vipplan.ru

Випплан Сочи - это тысячи проектов домов в нашем каталоге!

Вы всегда сможете найти для себя проект дома вашей мечты! Даже если этого не случилось, мы готовы в любую минуту предложить проект индивидуального дома.

Забыли пароль?
Вы еще не регистрировались?

Перейдите по ссылке ниже на страницу регистрации.

Регистрация...

Внимание!!!

В проектную документацию могут быть внесены изменения любой сложности, в соответствии в Вашими пожеланиями!

Полезные статьи

Как сделать мансардную крышу

Мансарда - обеспечивает дополнительную жилую площадь одно- или двухуровневой постройке за счет подкровельного пространства и, благодаря видимым элементам конструкции крыши, выполняет немаловажную эстетическую функцию. Дома с мансардой достаточно распространены в Краснодарском крае благодаря своей привлекательности и неповторимости. ...

Комбинированные дома

Посмотрите, насколько далеко шагнула архитектура за последние десятилетия. Сколько изменилось в облике современных городов. А задумывались ли наши родители, о том что они увидят необыкновенные небоскребы и элитные многоквартирные дома, чьи фасады напоминают обруганную капиталистическую действительность. У людей появилась возможность построить дом за городом и в тишине на природе, реализовать любые дизайнерские фантазии. Те, кто может позволить себе частный дом, не ограничены финансами. Для многих частный дом – это показатель их материального благополучия, поэтому никто из них не хочет испол...

Проекты домов и коттеджей > Каталог проектов домов > Проект комфортного коттеджа с балконом и террасой Vg1353

Проект комфортного коттеджа с балконом и террасой Vg1353

Проект комфортного коттеджа с балконом и террасой
Зарегистрируйтесь

Проект № Vg1353


Техническое описание
Общая площадь: 166.66 м2
Жилая площадь: 77.63 м2
Высота здания: 8.39 м
Размеры дома: 19.84м×13.48м
Кол-во комнат: 5
Цокольный этаж: нет
Гараж: нет
Мансарда: нет

Kонструкция
Фундамент: Монолитная плита
Перекрытия: Деревянные балки
Материал стен: Газобетон

Архитектурный раздел
Конструктивный раздел
АР+КР - 56 000 (Со скидкой 20%)
Проект индивидуального одноэтажного жилого дома с мансардой с размерами здания 19,84 x 13,48м. Наружная отделка здания – сайдинг. Фундамент - монолитная плита ( под всей площадью дома). Наружные стены – газобетонные блоки с утеплением минераловатной плитой толщиной и отделкой сайдингом толщиной. Внутренние стены - газобетонные блоки Перегородки на первом этаже -из газобетонных блоков, на мансардном этаже - из ГКЛ на металлическом каркасе. Снаружи вентканалы и дымоходы - штукатурка. Перемычки - монолитные и сварные из профиля проката. Перекрытие межэтажное - по деревянным балкам с использованием теплошумоизоляционных материалов типа "URSA" в межбалочном пространстве. Пол первого этажа - пол по монолитной плите. Крыша многоскатая. Кровля – металлочерепица. Окна - металлопластиковые, выполненные по индивидуальному заказу.
Генплан застройки участка / Паспорт проекта 7000 руб / 10000 руб
Инженерный раздел (полный) 83500 руб
Смета на строительство 41750 руб
Теплотехнический расчет материалов стен Бесплатно
Стоимость проекта со незначительнми изменениями 65800 руб
Стоимость проекта со средними изменениями* 78400 руб
Стоимость проекта со значительными изменениями** 81700 руб

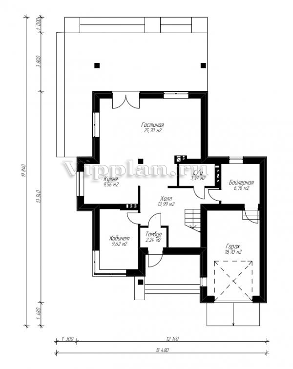
План первого этажа


Тамбур — 2,24 кв м
Холл — 13,99 кв м
Гостиная — 25,70 кв м
Кухня — 9,56 кв м
Кабинет — 9,62 кв м
С/у — 3,37 кв м
Бойлерная — 6,76 кв м
Гараж — 18,70 кв м

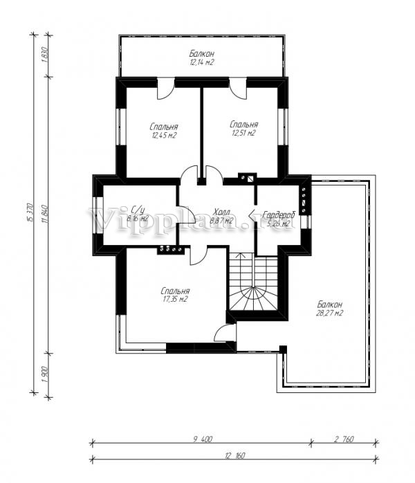
План мансардного этажа


Холл — 8,87 кв м
Спальня — 12,45 кв м
Спальня — 12,51 кв м
С/у — 8,16 кв м
Гардероб — 5,26 кв м
Спальня — 17,35 кв м
Балкон — 12,14 кв м
Балкон — 28,27 кв м
Проект комфортного коттеджа с балконом и террасой Проект комфортного коттеджа с балконом и террасой Проект комфортного коттеджа с балконом и террасой Проект комфортного коттеджа с балконом и террасой

Модификации проектов

Внесение изменений и привязка к участку строительства

В любой из проектов от компании VIPplan - Сочи по вашему желанию могут быть внесены изменения в материалы стен, материалы наружной отделки дома, а также будет произведена адаптация проекта под конкретный регион строительства (с учетом грунтов региона, геологических особенностей вашего участка и местных климатических условий) - БЕСПЛАТНО !!! (кроме проектов со скидкой и проектов наших партнеров).

Любой из проектов, размещенных на сайте sochi.vipplan.ru мы можем выполнить из требуемых вам строительных материалов: ячеистый бетон (газобетон, пеноблок), керамоблок, кирпич, шлакоблок, бетонный блок, дерево (брус, клееный брус), каркасная технология (деревянный каркас, металлокаркас (ЛСТК)).

Фасад дома и его наружную отделку так же возможно выполнить с применением различных облицовочных материалов: структурной штукатурки, (с утеплителем и без), сайдингом (пластиковый или металлосайдинг), фиброплитами, кирпича.

 
6 Избранные
проекты

Доставка проектов по России: Москва (Московская область), Санкт-Петербург (Ленинградская область), Краснодар, Ростов-на-Дону, Ставрополь, Сочи, Волгоград, Новосибирск, Белгород, Брянск, Воронеж, Саратов, Хабаровск, Астрахань, Нальчик, Владикавказ, Екатеринбург, Тюмень, Самара, Нижний Новгород, Казань, Пермь, Уфа, Челябинск, Красноярск, Ханты-Мансийск, Иркутск, Курган, Оренбург, Омск, Томск, Барнаул, Новокузнецк, Кемерово, Абакан, Чита, Якутск, Южно-Сахалинск, Петропавловск-Камчатский и страны ближнего зарубежья: Белоруссия, Украина, Казахстан