Добро пожаловать на http://vipplan.ru

Випплан Сочи - это тысячи проектов домов в нашем каталоге!

Вы всегда сможете найти для себя проект дома вашей мечты! Даже если этого не случилось, мы готовы в любую минуту предложить проект индивидуального дома.

Забыли пароль?
Вы еще не регистрировались?

Перейдите по ссылке ниже на страницу регистрации.

Регистрация...

Внимание!!!

В проектную документацию могут быть внесены изменения любой сложности, в соответствии в Вашими пожеланиями!

Полезные статьи

Где копать колодец?

Водоснабжение за городом - Сочи всегда было проблематичным. При отсутствии центрального водоснабжения остается только один выход – выкопать колодец. Водоносный пласт есть не везде. Как же определить, где копать колодец?...

Фундамент под гараж

Обычно фундаменты под гараж делаются из бетонного раствора и заливаются, как монолит. Гаражные фундаменты так же можно укладывать из бетона с применением бутового камня. Такие фундаменты тоже считаются монолитными. В этом случае происходит экономия бетона....

Проекты домов и коттеджей > Каталог проектов домов > Двухэтажный дом с мансардным этажом Vg1297

Двухэтажный дом с мансардным этажом Vg1297

Двухэтажный дом с мансардным этажом
Зарегистрируйтесь

Проект № Vg1297


Техническое описание
Общая площадь: 241.87 м2
Жилая площадь: 175.91 м2
Высота здания: 10.33 м
Размеры дома: 10м×13м
Кол-во комнат: 8
Цокольный этаж: нет
Гараж: нет
Мансарда: есть

Kонструкция
Фундамент: Монолитный
Перекрытия: Монолитные
Материал стен: Газобетон

Архитектурный раздел
Конструктивный раздел
Инженерный раздел
АР+КР - 64 000 (Со скидкой 20%)
АР+КР+ИР - 148 700 (Со скидкой 50%)
Проект индивидуального двухэтажного жилого дома с мансардой с размерами 10.0 x 13.0 м. Наружная отделка здания – декоративная фасадная штукатурка и клинкерная плитка. Отделка цоколя – клинкерная плитка. Фундамент – монолитная ж/б плита. Наружные стены запроектированы из пенобетонных блоков и утеплителя с отделкой декоративной фасадной штукатуркой и клинкерной плиткой. Внутренние стены – из пенобетонных блоков. Перегородки – из пенобетонных блоков (1-й и 2-й этажи) и гипсокартона на металлическом каркасе (мансарда). Пол 1-го – пол по фундаментной плите. Перекрытия межэтажные – монолитные ж/б и по деревянным балкам с использованием тепло-шумоизоляционных материалов. Крыша - четырехскатная. Материал кровли – металлочерепица. Окна - металлопластиковые, выполненные по индивидуальному заказу.
Генплан застройки участка / Паспорт проекта 7000 руб / 10000 руб
Инженерный раздел (полный) 84700 руб (121000 руб)
Смета на строительство 60500 руб
Теплотехнический расчет материалов стен Бесплатно
Стоимость проекта со незначительнми изменениями 73950 руб
Стоимость проекта со средними изменениями* 92100 руб
Стоимость проекта со значительными изменениями** 96900 руб

План первого этажа


Тамбур — 3,84 кв м
Холл — 13,35 кв м
Гостиная — 24,87 кв м
Кухня — 11,56 кв м
Кладовая — 2,64 кв м
Кабинет — 14,26 кв м
С/у — 4,23 кв м
Бойлерная — 4,23 кв м
Спальня — 12,60 кв м

Двухэтажный дом с мансардным этажом

Двухэтажный дом с мансардным этажом

План второго этажа


Холл — 7,92 кв м
Спальня — 12,60 кв м
Гардероб — 5,95 кв м
Спальня — 16,75 кв м
Балкон — 4,28 кв м
Спальня — 12,91 кв м
С/у — 8,61 кв м
С/у — 3,16 кв м
Спальня — 16,66 кв м

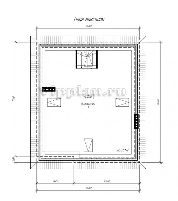
План мансардного этажа


Помещение — 65,26 кв м
Двухэтажный дом с мансардным этажом Двухэтажный дом с мансардным этажом Двухэтажный дом с мансардным этажом Двухэтажный дом с мансардным этажом

Модификации проектов

Внесение изменений и привязка к участку строительства

В любой из проектов от компании VIPplan - Сочи по вашему желанию могут быть внесены изменения в материалы стен, материалы наружной отделки дома, а также будет произведена адаптация проекта под конкретный регион строительства (с учетом грунтов региона, геологических особенностей вашего участка и местных климатических условий) - БЕСПЛАТНО !!! (кроме проектов со скидкой и проектов наших партнеров).

Любой из проектов, размещенных на сайте sochi.vipplan.ru мы можем выполнить из требуемых вам строительных материалов: ячеистый бетон (газобетон, пеноблок), керамоблок, кирпич, шлакоблок, бетонный блок, дерево (брус, клееный брус), каркасная технология (деревянный каркас, металлокаркас (ЛСТК)).

Фасад дома и его наружную отделку так же возможно выполнить с применением различных облицовочных материалов: структурной штукатурки, (с утеплителем и без), сайдингом (пластиковый или металлосайдинг), фиброплитами, кирпича.

 
6 Избранные
проекты

Доставка проектов по России: Москва (Московская область), Санкт-Петербург (Ленинградская область), Краснодар, Ростов-на-Дону, Ставрополь, Сочи, Волгоград, Новосибирск, Белгород, Брянск, Воронеж, Саратов, Хабаровск, Астрахань, Нальчик, Владикавказ, Екатеринбург, Тюмень, Самара, Нижний Новгород, Казань, Пермь, Уфа, Челябинск, Красноярск, Ханты-Мансийск, Иркутск, Курган, Оренбург, Омск, Томск, Барнаул, Новокузнецк, Кемерово, Абакан, Чита, Якутск, Южно-Сахалинск, Петропавловск-Камчатский и страны ближнего зарубежья: Белоруссия, Украина, Казахстан